MEHRFAMILIENWOHNHAUS TBW
Das Mehrfamilienwohnhaus …
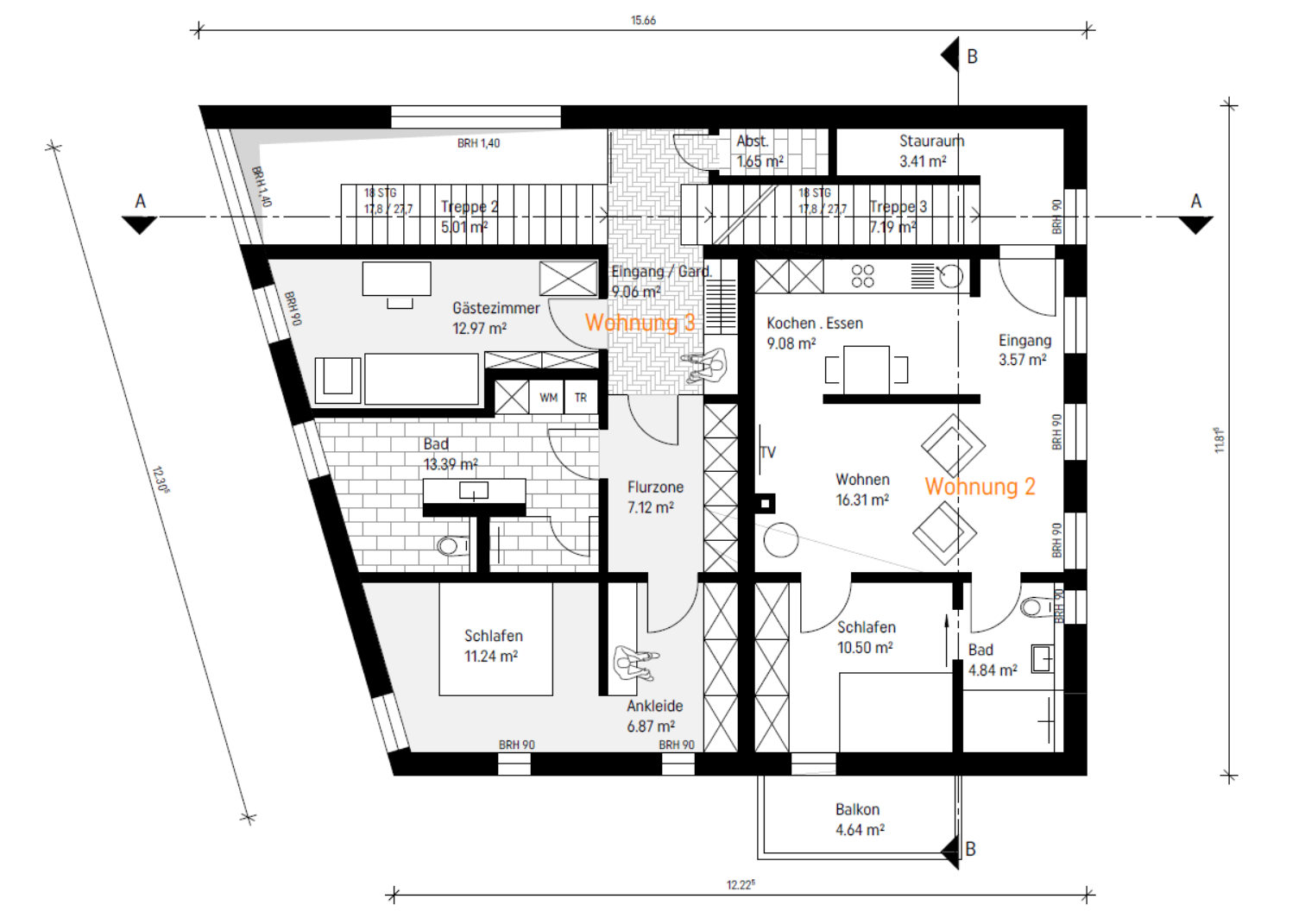
…in Soest hat Platz für 3 Parteien und wurde als Holzrahmenkonstruktion realaisiert. Die entwurfliche Herausforderung lag darin, jedem Nutzer seinen eigenen Zugang zu zuordnen. Über eine geschickte übereinanderlegung der Treppe ist es schlißelich gelungen dem Nutzer im Dachgeschoss seinen ganz eigenen Hauseingang zu schaffen. Die gute Zusammenarbeit mit der Firma Roreger hat schließlich zu diesem schönen Ergebnis geführt. Vielen Dank allen beteiligten!
FOTOS: ad08 Fotografie GmbH, Arnsberg
AUSFÜHRUNG: ROREGER HOLZBAU
Bauherr: privat
Ort: Soest
Baukosten: n.A.
Planungsbeginn: 10/2016
Fertigstellung: Frühjahr 2018
